Выберите готовый проект дома
или закажите индивидуальный
Каждый из представленных проектов можно выполнить в любой пропорции и комплектации.
Если у вас уже есть проект, то отправьте его нам, мы сделаем расчёты
Если у вас уже есть проект, то отправьте его нам, мы сделаем расчёты
Куб - 56 кв.м.
Компактный современный дом в стиле Хай Тек с функциональной планировкой и модным дизайном
С террасой
от 1 400 тыс. руб.
Крона - 79 кв.м.
Проект одноэтажного дома 10 на 9 метров, общей площадью 79 м2, из газобетона (ракушняка) c котельной и кухней-столовой.
Второй свет
от 1 990 тыс. руб.
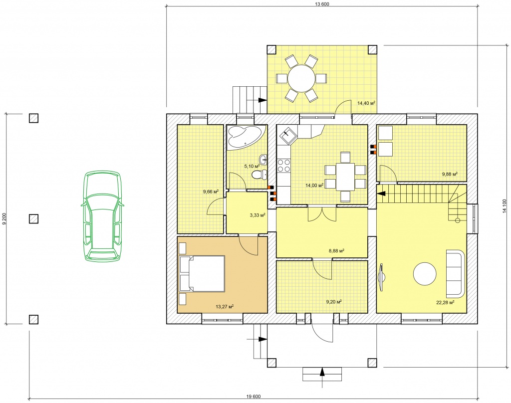
Манаус - 93 кв.м.
Проект дома в современном стиле с 3 комнатами, 2 санузлами, террасой и изолированной кухней.
Кухня - 18,7 кв.м.
от 2 323 тыс. руб.
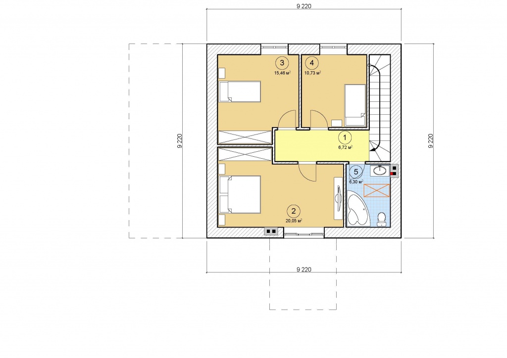
Кейт - 76,59 кв.м.
Количество спален: 2
Чердак: при желании заказчика, эксплуатируемый
Первый этаж: тамбур, холл, две спальни, кухня, гостиная, санузел, котельная.
Чердак: при желании заказчика, эксплуатируемый
Первый этаж: тамбур, холл, две спальни, кухня, гостиная, санузел, котельная.
С террасой
от 1 800 тыс. руб.
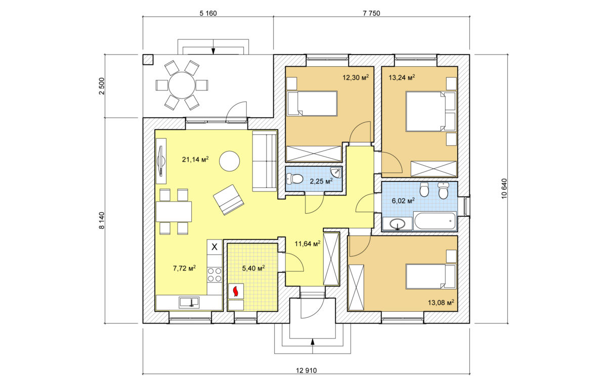
Бруно - 92,8 кв.м.
Количество спален: 3
Чердак: при желании заказчика, эксплуатируемый
Первый этаж: тамбур, холл, три спальни, кухня, гостиная, два санузла,
котельная.
Чердак: при желании заказчика, эксплуатируемый
Первый этаж: тамбур, холл, три спальни, кухня, гостиная, два санузла,
котельная.
С террасой
от 2 6325 тыс. руб.
Монк - 89 кв.м.
Количество спален: 2
Чердак: при желании заказчика, эксплуатируемый
Первый этаж: тамбур, холл, две спальни, кухня-гостиная, два санузла, котельная.
Чердак: при желании заказчика, эксплуатируемый
Первый этаж: тамбур, холл, две спальни, кухня-гостиная, два санузла, котельная.
Кухня-гостинная - 27,7 кв.м.
от 2 225 тыс. руб.
Арбат - 91,2 кв.м.
Количество спален: 2
Чердак: при желании заказчика, эксплуатируемый
Первый этаж: тамбур, холл, котельная, две спальни, кухня — гостиная, два санузла.
Чердак: при желании заказчика, эксплуатируемый
Первый этаж: тамбур, холл, котельная, две спальни, кухня — гостиная, два санузла.
2 сан.узла
от 2 275 тыс. руб.
Верда - 71,5 кв.м.
Первый этаж: тамбур, котельная, санузел, кухня-гостиная, две спальни, терраса.
Чердак: при желании заказчика, эксплуатируемый.
Чердак: при желании заказчика, эксплуатируемый.
С террасой
от 1 775 тыс. руб.
Стил - 86,7 кв.м.
Первый этаж: тамбур, холл, санузел, кухня-гостиная, три спальни, котельная, терраса.
Чердак: при желании заказчика, эксплуатируемый.
Чердак: при желании заказчика, эксплуатируемый.
Кухня-гостинная - 27,7 кв.м.
от 2 335 тыс. руб.
Парк - 90,3 кв.м.
Количество спален: 2
Чердак: при желании заказчика, эксплуатируемый
Первый этаж: тамбур, котельная, две спальни, кухня — гостиная, два санузла.
Чердак: при желании заказчика, эксплуатируемый
Первый этаж: тамбур, котельная, две спальни, кухня — гостиная, два санузла.
2 сан.узла
от 2 210 тыс. руб.
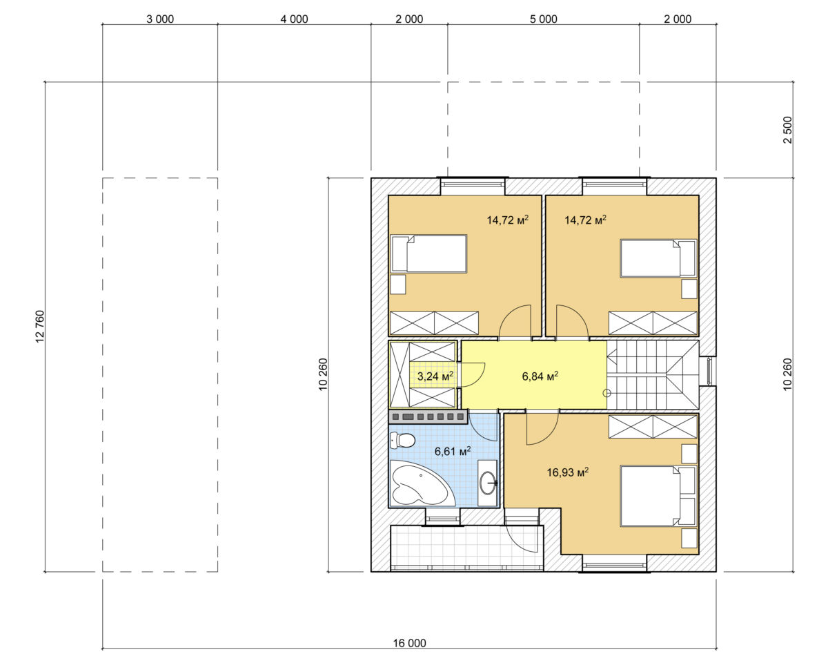
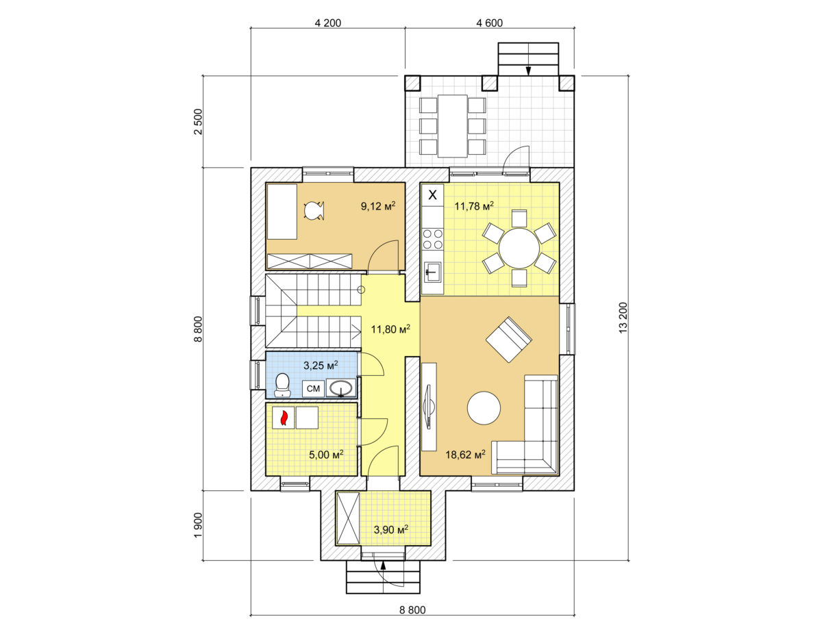
Бонд - 89 кв.м.
Первый этаж: тамбур, холл, санузел, гостиная-кухня, котельная.
Второй этаж: три спальни, санузел.
Чердак: при желании заказчика, эксплуатируемый.
Второй этаж: три спальни, санузел.
Чердак: при желании заказчика, эксплуатируемый.
Кухня-гостинная - 25 кв.м.
от 2 250 тыс. руб.
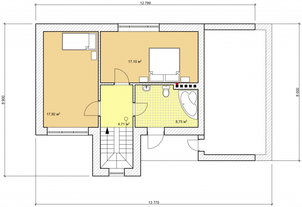
Брайт - 110,1 кв.м.
Количество спален: 3
Первый этаж: тамбур, холл, котельная, санузел, гостиная, кухня.
Второй этаж: три спальни, холл, санузел.
Первый этаж: тамбур, холл, котельная, санузел, гостиная, кухня.
Второй этаж: три спальни, холл, санузел.
С террасой
от 2 700 тыс. руб.
Конг - 129 кв.м.
Количество спален: 3
Чердак: при желании заказчика, эксплуатируемый
Терраса: да
Первый этаж: тамбур, холл, три спальни, кухня, гостиная, два санузла, котельная.
Чердак: при желании заказчика, эксплуатируемый
Терраса: да
Первый этаж: тамбур, холл, три спальни, кухня, гостиная, два санузла, котельная.
2 санузла
от 3 225 тыс. руб.
Бокарди - 162 кв.м.
Количество спален: 5
Балкон: да
Первый этаж: тамбур, холл, котельная, санузел, гостиная, кухня, кабинет
Второй этаж: четыре спальни, санузел, холл.
Балкон: да
Первый этаж: тамбур, холл, котельная, санузел, гостиная, кухня, кабинет
Второй этаж: четыре спальни, санузел, холл.
Балкон
от 4 090 тыс. руб.
Брайт - 175,7 кв.м.
Количество спален: 4
Навес: да
Терраса: да
Первый этаж: тамбур, холл, санузел, гостиная, кухня, кабинет, навес, котельная, хозпомещения.
Второй этаж: три спальни, санузел, холл, гардероб.
Навес: да
Терраса: да
Первый этаж: тамбур, холл, санузел, гостиная, кухня, кабинет, навес, котельная, хозпомещения.
Второй этаж: три спальни, санузел, холл, гардероб.
С навесом и хозблоком
от 4 406 тыс. руб.
Бакс - 179,4 кв.м.
Количество спален: 3
Подвал: нет
Терраса: да
Чердак: при желании заказчика эксплуатируемый
Первый этаж: тамбур, котельная, санузел, кухня, столовая, гостиная.
Второй этаж: три спальни, гардероб, санузел.
Подвал: нет
Терраса: да
Чердак: при желании заказчика эксплуатируемый
Первый этаж: тамбур, котельная, санузел, кухня, столовая, гостиная.
Второй этаж: три спальни, гардероб, санузел.
2 этажа
от 4 475 тыс. руб.
Реймонд - 151,1 кв.м.
Количество спален: 3
Гараж: да
Чердак: при желании заказчика, эксплуатируемый
Терраса: да
Первый этаж: тамбур, холл, три спальни, кухня-гостиная, два санузла, котельная, гараж.
Гараж
от 3 777 тыс. руб.
Хологард- 178,2 кв.м.
Количество спален: 3
Гараж: да
Чердак: при желании заказчика, эксплуатируемый
Терраса: да
Первый этаж: тамбур, холл, гардероб, три спальни, кухня-гостиная, два санузла, котельная, гараж.
Гараж: да
Чердак: при желании заказчика, эксплуатируемый
Терраса: да
Первый этаж: тамбур, холл, гардероб, три спальни, кухня-гостиная, два санузла, котельная, гараж.
2 санузла
от 4 455 тыс. руб.
Винсент- 190,2кв.м.
Количество спален: 4
Терраса: да
Первый этаж: тамбур, холл, котельная, санузел, спальня, кухня — гостиная.
Второй этаж: три спальни, санузел, кабинет.
С террасой
от 4 755 тыс. руб.
Гермес- 179,7 кв.м.
Первый этаж: тамбур, гардероб, холл, санузел, гостиная, кухня, котельная, кабинет, спальня.
Второй этаж: три спальни, санузел, гардероб.
Чердак: при желании заказчика, эксплуатируемый.
Кабинет
от 4 492 тыс. руб.
Кельвин- 136,7 кв.м.
Первый этаж: тамбур, холл, санузел, гостиная-кухня, котельная, кабинет.
Второй этаж: три спальни, санузел, гардероб.
Чердак: при желании заказчика, эксплуатируемый.
Второй этаж: три спальни, санузел, гардероб.
Чердак: при желании заказчика, эксплуатируемый.
Кухня-гостиная
от 3 417 тыс. руб.
Фокстер- 175,7кв.м.
Количество спален: 4
Терраса: да
Балкон: да
Первый этаж: тамбур, холл, котельная, санузел, гостиная, кухня, кабинет.
Второй этаж: три спальни, санузел, холл.
С террасой
от 4 392 тыс. руб.
Арнвэй- 175,3 кв.м.
Первый этаж: гараж, тамбур, холл, гардероб, котельная, санузел, постирочная, гостиная, кухня.
Второй этаж: три спальни, санузел, гардероб.
Гараж
от 4 382 тыс. руб.
Парнер- 97,3 кв.м.
Первый этаж: тамбур, холл, два санузла, гостиная, кухня, три спальни, котельная.
Чердак: при желании заказчика, эксплуатируемый
Чердак: при желании заказчика, эксплуатируемый
2 санузла
от 2 432 тыс. руб.
Саунлер- 94,9кв.м.
Первый этаж: тамбур, холл, два санузла, гостиная, кухня, три спальни, котельная.
Чердак: при желании заказчика, эксплуатируемый.
2 санузла
от 2 372 тыс. руб.
Спринг- 94,4 кв.м.
Первый этаж: тамбур, холл, два санузла, гостиная, кухня, две спальни.
Чердак: при желании заказчика, эксплуатируемый.
2 санузла
от 2 360 тыс. руб.
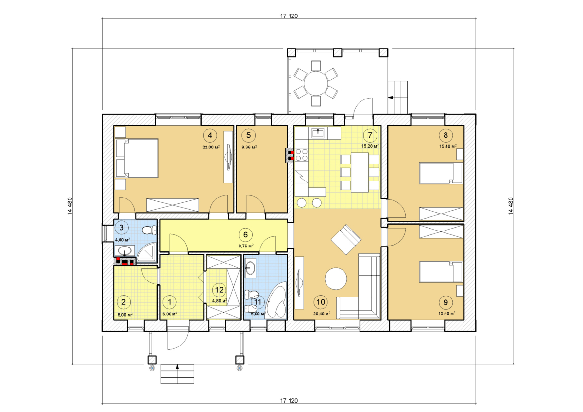
Инферно- 245,4 кв.м.
Первый этаж: тамбур, холл, санузел, гостиная, кухня, котельная, кабинет, гараж.
Второй этаж: три спальни, санузел, гардероб.
Чердак: при желании заказчика, эксплуатируемый.
Второй этаж: три спальни, санузел, гардероб.
Чердак: при желании заказчика, эксплуатируемый.
Гараж
от 6 135 тыс. руб.
Вудхилл- 175кв.м.
Количество спален: 3
Гараж: да
Первый этаж: тамбур, гардероб, холл, котельная, санузел, кухня, гостиная, гараж.
Второй этаж: три спальни, санузел, кладовая.
Гараж
от 4 375 тыс. руб.
Гудмир- 186,6 кв.м.
Первый этаж: тамбур, холл, санузел, гостиная, кухня, котельная, кабинет.
Второй этаж: три спальни, санузел, гардероб.
Чердак: при желании заказчика, эксплуатируемый.
2 этажа
от 4 665 тыс. руб.
Монро- 149,1 кв.м.
Первый этаж: тамбур, холл,два санузла, гостиная, кухня, три спальни, котельная, гараж.
Чердак: при желании заказчика, эксплуатируемый.
Чердак: при желании заказчика, эксплуатируемый.
2 санузла
от 3 727 тыс. руб.
София- 160кв.м.
Первый этаж: тамбур, холл, котельная, санузел, гостиная, кухня, кабинет.
Второй этаж: три спальни, санузел, гардероб.
Кабинет
от 4 000 тыс. руб.
Бридж- 178,9 кв.м.
Первый этаж: тамбур, холл, два санузла, гостиная, кухня, три спальни, котельная, гараж.
Чердак: при желании заказчика, эксплуатируемый.
2 санузла
от 4 472 тыс. руб.
Дастер- 250,4 кв.м.
Первый этаж: гараж, тамбур, холл, котельная, санузел, гостиная, кухня-столовая.
Второй этаж: три спальни, санузел, гардероб
Второй этаж: три спальни, санузел, гардероб
Гараж
от 6 260 тыс. руб.
Робин- 152,3кв.м.
Количество спален: 3
Подвал: нет
Гараж: нет
Терраса: да
Первый этаж: тамбур, гардероб, холл, санузел, гостиная, кухня, котельная.
Второй этаж: три спальни, гардероб, санузел, холл.
2 этажа
от 3 807 тыс. руб.
Крам- 441,7 кв.м.
Первый этаж: тамбур, холл, котельная, санузел, гостиная, кухня-столовая.
Второй этаж: три спальни, санузел.
2 санузла
от 11 042 тыс. руб.
Саймон- 183,8 кв.м.
Первый этаж: тамбур, холл, санузел, гостиная, кухня, котельная, гараж, кладовая.
Второй этаж: три спальни, санузел, гардероб.
Чердак: при желании заказчика, эксплуатируемый.
Второй этаж: три спальни, санузел, гардероб.
Чердак: при желании заказчика, эксплуатируемый.
Гараж
от 4 595 тыс. руб.
Честер- 189,2кв.м.
Первый этаж: тамбур, холл, котельная, гараж, санузел, гостиная, кухня, кабинет.
Второй этаж: три спальни, санузел, второй свет.
Гараж
от 4 730 тыс. руб.
Оранж- 124,7 кв.м.
Первый этаж: тамбур, холл, котельная, санузел, гостиная, кухня-столовая.
Второй этаж: три спальни, санузел.
Второй этаж: три спальни, санузел.
3 спальни
от 3 117 тыс. руб.
Клэр- 408,2 кв.м.
Первый этаж: тамбур, холл, три санузла, гостиная, кухня, столовая котельная, кладовая, бассейн.
Второй этаж: три спальни, санузел, гардероб, второй свет.
Чердак: при желании заказчика, эксплуатируемый.
Второй этаж: три спальни, санузел, гардероб, второй свет.
Чердак: при желании заказчика, эксплуатируемый.
Второй свет
от 10 205 тыс. руб.
Форест - 128,1кв.м.
Первый этаж: тамбур, холл, два санузла, гостиная, кухня, три спальни, котельная, гардероб.
Чердак: при желании заказчика, эксплуатируемый.
2 санузла
от 3 202 тыс. руб.
Шерил- 120 кв.м.
Первый этаж: тамбур, холл, два санузла, гостиная, кухня, три спальни
Чердак: при желании заказчика, эксплуатируемый.
3 спальни
от 3 000 тыс. руб.
Ривз- 127,4 кв.м.
Первый этаж: тамбур, холл, санузел, гостиная, кухня, гараж.
Второй этаж: две спальни, санузел.
Чердак: при желании заказчика, эксплуатируемый.
Второй этаж: две спальни, санузел.
Чердак: при желании заказчика, эксплуатируемый.
Гараж
от 3 185 тыс. руб.
Антегро - 473,4кв.м.
Первый этаж: тамбур, холл, санузел, гостиная, кухня, столовая, кабинет, котельная, гараж, кладовая, баня.
Второй этаж: две спальни, два санузла, два гардероба.
Чердак: при желании заказчика, эксплуатируемый.
Баня
от 11 835 тыс. руб.
Тейт- 127,6 кв.м.
Первый этаж: тамбур, холл, котельная, гардероб, санузел, гостиная, кухня, спальня, веранда.
Второй этаж: две спальни, санузел.
Веранда
от 3 190 тыс. руб.
Глория- 120,8 кв.м.
Первый этаж: тамбур, холл, два санузла, гостиная, кухня, три спальни, котельная.
Чердак: при желании заказчика, эксплуатируемый.
Чердак: при желании заказчика, эксплуатируемый.
2 санузла
от 3 020 тыс. руб.
Белла - 121,3кв.м.
Количество спален: 3
Гараж: нет
Чердак: при желании заказчика, эксплуатируемый
Терраса: да
Первый этаж: тамбур, холл, три спальни, гардероб, кухня, гостиная, два санузла, котельная.
Терраса
от 3 032 тыс. руб.
Квинс- 88,2 кв.м.
Количество спален: 3
Гараж: нет
Чердак: при желании заказчика, эксплуатируемый
Терраса: да
Первый этаж: тамбур, холл, три спальни, кухня-гостиная, два санузла.
2 санузла
от 2 205 тыс. руб.
Крипс- 112,5 кв.м.
Количество спален: 3
Гараж: нет
Чердак: при желании заказчика, эксплуатируемый
Терраса: да
Первый этаж: тамбур, холл, три спальни, гардероб, кухня, гостиная, два санузла, котельная.
Гараж: нет
Чердак: при желании заказчика, эксплуатируемый
Терраса: да
Первый этаж: тамбур, холл, три спальни, гардероб, кухня, гостиная, два санузла, котельная.
2 санузла
от 2 812 тыс. руб.
Сильвер - 108,8кв.м.
Количество спален: 2
Гараж: да
Чердак: при желании заказчика, эксплуатируемый
Терраса: нет
Первый этаж: тамбур, холл, две спальни, кухня-гостиная, два санузла, котельная, гараж.
Гараж
от 2 720 тыс. руб.
Финеас- 117,7 кв.м.
Количество спален: 3
Гараж: нет
Чердак: при желании заказчика, эксплуатируемый
Терраса: да
Первый этаж: тамбур, холл, три спальни, гардероб, кухня, гостиная, два санузла, котельная.
2 санузла
от 2 942 тыс. руб.
Мари- 166,1 кв.м.
Количество спален: 4
Подвал: нет
Гараж: нет
Терраса: нет
Балкон: да
Первый этаж: тамбур, холл, котельная, санузел, гостиная, кухня, кабинет.
Второй этаж: три спальни, санузел, холл, гардероб.
Подвал: нет
Гараж: нет
Терраса: нет
Балкон: да
Первый этаж: тамбур, холл, котельная, санузел, гостиная, кухня, кабинет.
Второй этаж: три спальни, санузел, холл, гардероб.
Балкон
от 4 152 тыс. руб.
Кид - 165,8кв.м.
Количество спален: 3
Подвал: нет
Гараж: да
Чердак: при желании заказчика, эксплуатируемый
Терраса: да
Первый этаж: тамбур, холл, котельная, три спальни, кухня, гостиная, два санузла, гардероб, терраса, гараж.
Гараж
от 4 145 тыс. руб.
Шеппард - 163,7 кв.м.
Количество спален: 3
Подвал: нет
Гараж: да
Чердак: при желании заказчика, эксплуатируемый
Терраса: да
Первый этаж: тамбур, холл, котельная, три спальни, кухня, гостиная, два санузла, терраса, гараж.
2 санузла
от 4 092 тыс. руб.
Джозеф - 116,3 кв.м.
Количество спален: 3
Гараж: нет
Чердак: при желании заказчика, эксплуатируемый
Терраса: да
Первый этаж: тамбур, холл, три спальни, кухня, гостиная, два санузла, котельная.
Терраса
от 2 907 тыс. руб.
Чезари - 219,5 кв.м.
Количество спален: 4
Подвал: да
Гараж: да
Чердак: при желании заказчика, эксплуатируемый
Терраса: да
Первый этаж: тамбур, холл, котельная, четыре спальни, кухня, гостиная, два санузла, терраса, гардероб.
Гараж
от 5 487 тыс. руб.
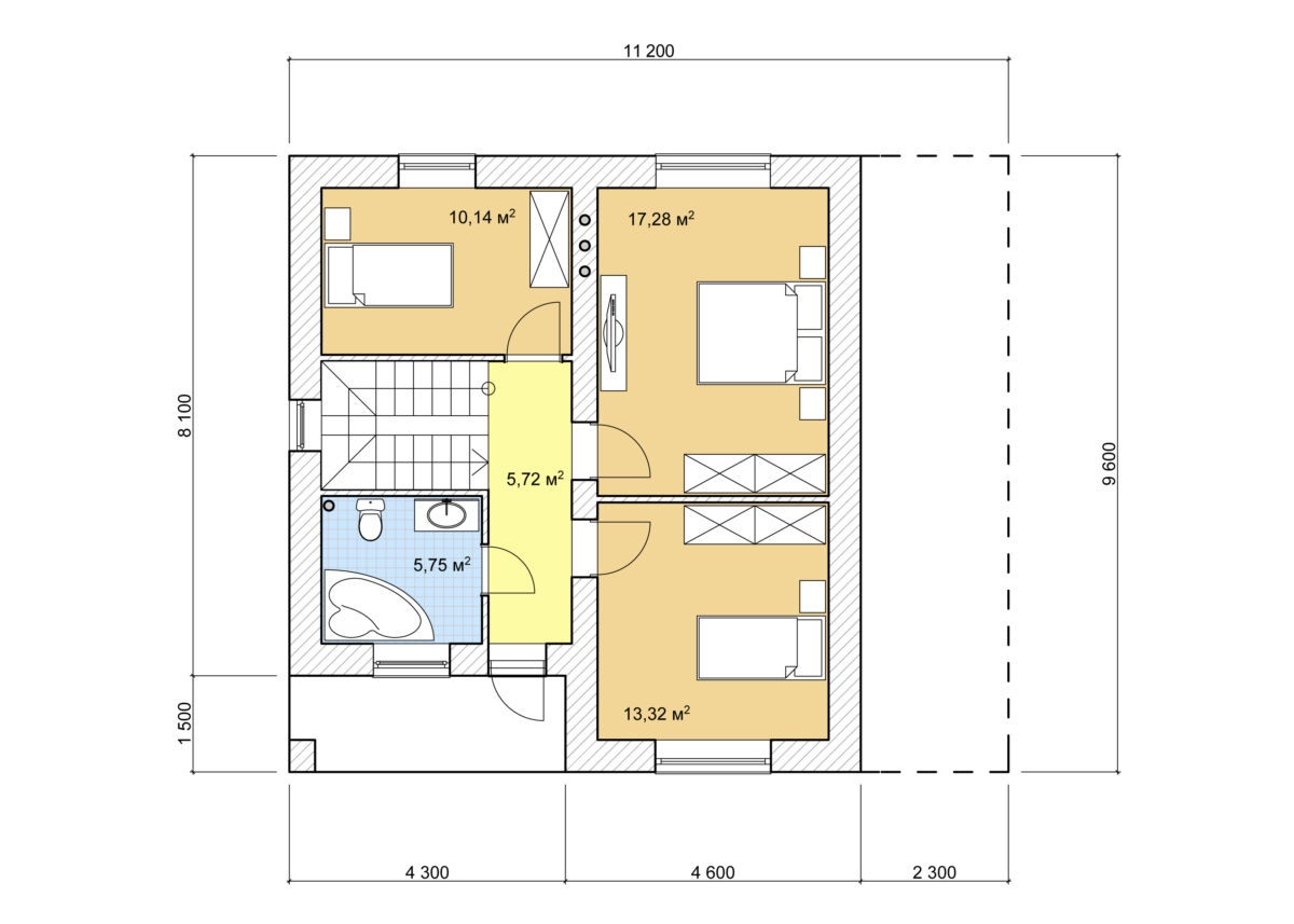
Митч- 76,6 кв.м.
Количество спален: 2
Гараж: нет
Чердак: при желании заказчика, эксплуатируемый
Терраса: да
Первый этаж: тамбур, холл, две спальни, кухня, гостиная, санузел, котельная.
2 спальни
от 1 915 тыс. руб.
Райдер - 158,1 кв.м.
Количество спален: 4
Подвал: нет
Гараж: нет
Терраса: да
Чердак: при желании заказчика эксплуатируемый
Первый этаж: тамбур, котельная, санузел, кабинет, кухня, гостиная.
Второй этаж: три спальни, санузел, гардероб.
Терраса
от 3 952 тыс. руб.
Симон - 148,1 кв.м.
Количество спален: 5
Подвал: нет
Гараж: нет
Терраса: да
Чердак: при желании заказчика эксплуатируемый
Первый этаж: тамбур, котельная, санузел, кабинет, кухня, гостиная.
Второй этаж: четыре спальни, санузел.
5 спален
от 3 702 тыс. руб.
Фарго- 139,3 кв.м.
Количество спален: 3
Гараж: нет
Чердак: при желании заказчика, эксплуатируемый
Терраса: да
Первый этаж: тамбур, холл, три спальни, гардероб, кухня, гостиная, два санузла, котельная.
2 санузла
от 3 482 тыс. руб.
Гвэн- 152,3 кв.м.
Количество спален: 4
Подвал: нет
Гараж: нет
Терраса: да
Первый этаж: тамбур, холл, санузел, гостиная, кухня, спальня.
Второй этаж: три спальни, гардероб, санузел, холл.
Подвал: нет
Гараж: нет
Терраса: да
Первый этаж: тамбур, холл, санузел, гостиная, кухня, спальня.
Второй этаж: три спальни, гардероб, санузел, холл.
Терраса
от 3 807 тыс. руб.
Форкс - 158,8 кв.м.
Количество спален: 3
Подвал: нет
Гараж: нет
Терраса: нет
Балкон: да
Первый этаж: тамбур, холл, санузел, гостиная, кухня, котельная.
Второй этаж: три спальни, гардероб, санузел, холл.
Балкон
от 3 970 тыс. руб.
Вилли- 114,6 кв.м.
Количество спален: 4
Подвал: нет
Гараж: нет
Терраса: да
Чердак: при желании заказчика эксплуатируемый
Первый этаж: тамбур, котельная, санузел, кабинет, кухня, гостиная.
Второй этаж: три спальни, санузел.
Терраса
от 2 865 тыс. руб.
Тори - 177,9 кв.м.
Количество спален: 3
Гараж: да
Чердак: при желании заказчика, эксплуатируемый
Терраса: да
Первый этаж: тамбур, холл, гардероб, три спальни, кухня, гостиная, два санузла, постирочная, гардероб, котельная, гараж.
Гараж: да
Чердак: при желании заказчика, эксплуатируемый
Терраса: да
Первый этаж: тамбур, холл, гардероб, три спальни, кухня, гостиная, два санузла, постирочная, гардероб, котельная, гараж.
Гараж
от 4 447 тыс. руб.
Мэйко- 128 кв.м.
Количество спален: 3
Гараж: да
Чердак: при желании заказчика, эксплуатируемый
Терраса: да
Первый этаж: тамбур, холл, три спальни, кухня-гостиная, два санузла, котельная, гараж.
Гараж: да
Чердак: при желании заказчика, эксплуатируемый
Терраса: да
Первый этаж: тамбур, холл, три спальни, кухня-гостиная, два санузла, котельная, гараж.
2 санузла
от 3 200 тыс. руб.
Санта- 202 кв.м.
Количество спален: 3
Гараж: да
Чердак: при желании заказчика, эксплуатируемый
Терраса: да
Первый этаж: тамбур, холл, гардероб, три спальни, кухня, гостиная, три санузла, котельная, гараж.
Гараж: да
Чердак: при желании заказчика, эксплуатируемый
Терраса: да
Первый этаж: тамбур, холл, гардероб, три спальни, кухня, гостиная, три санузла, котельная, гараж.
Терраса
от 5 050 тыс. руб.
Верту - 107,4 кв.м.
Количество спален: 3
Подвал: нет
Гараж: нет
Чердак: эксплуатируемый
Терраса: да
Первый этаж: тамбур, холл, котельная, три спальни, кухня, гостиная, санузел, терраса.
Подвал: нет
Гараж: нет
Чердак: эксплуатируемый
Терраса: да
Первый этаж: тамбур, холл, котельная, три спальни, кухня, гостиная, санузел, терраса.
3 спальни
от 2 685 тыс. руб.
Фелиция- 131 кв.м.
Количество спален: 3
Подвал: нет
Гараж: нет
Чердак: при желании заказчика, эксплуатируемый
Терраса: да
Первый этаж: тамбур, гардероб, котельная, три спальни, кухня, гостиная, два санузла, терраса.
Подвал: нет
Гараж: нет
Чердак: при желании заказчика, эксплуатируемый
Терраса: да
Первый этаж: тамбур, гардероб, котельная, три спальни, кухня, гостиная, два санузла, терраса.
2 санузла
от 3 275 тыс. руб.
Виола - 137,8 кв.м.
Количество спален: 3
Подвал: нет
Гараж: нет
Терраса: нет
Первый этаж: тамбур, холл, котельная, санузел, гостиная, кухня.
Второй этаж: три спальни, санузел.
Подвал: нет
Гараж: нет
Терраса: нет
Первый этаж: тамбур, холл, котельная, санузел, гостиная, кухня.
Второй этаж: три спальни, санузел.
3 спальни
от 3 445 тыс. руб.
Стэн - 174,1 кв.м.
Количество спален: 4
Подвал: нет
Гараж: нет
Терраса: да
Первый этаж: тамбур, холл, котельная, санузел, гостиная, кухня-столовая, кабинет.
Второй этаж: три спальни, санузел, гардероб.
Подвал: нет
Гараж: нет
Терраса: да
Первый этаж: тамбур, холл, котельная, санузел, гостиная, кухня-столовая, кабинет.
Второй этаж: три спальни, санузел, гардероб.
3 спальни
от 4 353 тыс. руб.
Фэнси- 243 кв.м.
Количество спален: 4
Подвал: нет
Гараж: да
Терраса: да
Чердак: при желании заказчика эксплуатируемый
Первый этаж: тамбур, котельная, санузел, кабинет, кухня, столовая, гостиная, гараж.
Второй этаж: три спальни, два санузла, гардероб.
Подвал: нет
Гараж: да
Терраса: да
Чердак: при желании заказчика эксплуатируемый
Первый этаж: тамбур, котельная, санузел, кабинет, кухня, столовая, гостиная, гараж.
Второй этаж: три спальни, два санузла, гардероб.
Гараж
от 6 075 тыс. руб.
Брайт - 130,7 кв.м.
Количество спален: 4
Гараж: нет
Чердак: при желании заказчика, эксплуатируемый
Терраса: да
Первый этаж: тамбур, холл, четыре спальни, кухня-гостиная, два санузла, котельная.
Гараж: нет
Чердак: при желании заказчика, эксплуатируемый
Терраса: да
Первый этаж: тамбур, холл, четыре спальни, кухня-гостиная, два санузла, котельная.
4 спальни
от 3 267 тыс. руб.
Лиар - 164,2 кв.м.
Количество спален: 3
Подвал: нет
Гараж: да
Чердак: при желании заказчика, эксплуатируемый
Терраса: да
Первый этаж: тамбур, холл, котельная, три спальни, кухня, гостиная, два санузла, терраса, гардероб, гараж.
Подвал: нет
Гараж: да
Чердак: при желании заказчика, эксплуатируемый
Терраса: да
Первый этаж: тамбур, холл, котельная, три спальни, кухня, гостиная, два санузла, терраса, гардероб, гараж.
3 спальни
от 4 105 тыс. руб.
Грейс- 112,8 кв.м.
Количество спален: 3
Подвал: нет
Гараж: нет
Чердак: при желании заказчика, эксплуатируемый
Терраса: да
Первый этаж: тамбур, холл, три спальни, кухня, гостиная, санузел, котельная.
Подвал: нет
Гараж: нет
Чердак: при желании заказчика, эксплуатируемый
Терраса: да
Первый этаж: тамбур, холл, три спальни, кухня, гостиная, санузел, котельная.
Терраса
от 2 821 тыс. руб.
Скотт - 160,2 кв.м.
Этажность: 2
Количество спален: 4
Подвал: нет
Гараж: нет
Терраса: да
Первый этаж: тамбур, холл, котельная, санузел, гостиная, кухня, кабинет.
Второй этаж: три спальни, санузел, гардеробные.
Количество спален: 4
Подвал: нет
Гараж: нет
Терраса: да
Первый этаж: тамбур, холл, котельная, санузел, гостиная, кухня, кабинет.
Второй этаж: три спальни, санузел, гардеробные.
4 спальни
от 4 005 тыс. руб.
Брамс - 198,4 кв.м.
Первый этаж: Гараж на два автомобиля, тамбур, холл, котельная, санузел, гостиная, кухня, кабинет.
Второй этаж: три спальни, санузел, гардероб.
Второй этаж: три спальни, санузел, гардероб.
3 спальни
от 4 960 тыс. руб.
Кейн- 154,7 кв.м.
Первый этаж: тамбур, холл, два санузла, гостиная, кухня-столовая, три спальни, гардероб.
Чердак: при желании заказчика, эксплуатируемый.
Чердак: при желании заказчика, эксплуатируемый.
2 санузла
от 3 867 тыс. руб.
Клод - 134,8 кв.м.
Первый этаж: тамбур, холл, санузел, гостиная, кухня, Котельная.
Второй этаж: три спальни, санузел, гардероб, балкон.
Чердак: при желании заказчика, эксплуатируемый.
Второй этаж: три спальни, санузел, гардероб, балкон.
Чердак: при желании заказчика, эксплуатируемый.
3 спальни
от 3 370 тыс. руб.
Фигаро - 162 кв.м.
Первый этаж: тамбур, холл, котельная, кладовая с погребом, санузел, гостиная, кухня, спальня, веранда.
Второй этаж: три спальни, два санузла.
Второй этаж: три спальни, два санузла.
4 спальни
от 4 050 тыс. руб.
Банни- 101,1 кв.м.
Первый этаж: тамбур, холл, два санузла, гостиная, кухня, две спальни.
Чердак: при желании заказчика, эксплуатируемый.
Чердак: при желании заказчика, эксплуатируемый.
2 санузла
от 2 527 тыс. руб.
Виктория - 373,52 кв.м.
Цокольный этаж: котельная, тех.помещения
Первый этаж: тамбур, холл, санузел, гостиная, кухня, котельная, гараж, кладовая.
Второй этаж: три спальни, санузел, гардероб.
Первый этаж: тамбур, холл, санузел, гостиная, кухня, котельная, гараж, кладовая.
Второй этаж: три спальни, санузел, гардероб.
Гараж
от 9 338 тыс. руб.
Бэзил- 128,2 кв.м.
Первый этаж: тамбур, холл, санузел, гостиная-кухня
Второй этаж: три спальни, санузел
Второй этаж: три спальни, санузел
3 спальни
от 3 205 тыс. руб.
Флетчер- 179,3 кв.м.
Первый этаж: тамбур, холл, два санузла, гостиная, кухня, три спальни, котельная, гардероб, гараж.
Чердак: при желании заказчика, эксплуатируемый.
Чердак: при желании заказчика, эксплуатируемый.
Гараж
от 4 482 тыс. руб.
Брикс - 132,4 кв.м.
Первый этаж: тамбур, холл, два санузла, гостиная, кухня, три спальни, котельная, гардероб, кабинет.
Чердак: при желании заказчика, эксплуатируемый.
Чердак: при желании заказчика, эксплуатируемый.
2 санузла
от 3 310 тыс. руб.
Ларсон- 84,7 кв.м.
Первый этаж: тамбур, холл, два санузла, кухня-гостиная, три спальни
Чердак: при желании заказчика, эксплуатируемый.
Чердак: при желании заказчика, эксплуатируемый.
3 спальни
от 2 117 тыс. руб.
Эрен- 137,5 кв.м.
Первый этаж: тамбур, холл, санузел, гостиная, кухня, котельная.
Второй этаж: три спальни, санузел, кабинет.
Чердак: при желании заказчика, эксплуатируемый.
Второй этаж: три спальни, санузел, кабинет.
Чердак: при желании заказчика, эксплуатируемый.
3 спальни
от 3 437 тыс. руб.
Фрея - 121,1 кв.м.
Первый этаж: тамбур, холл, два санузла, кухня — гостиная, две спальни, котельная.
Чердак: при желании заказчика, эксплуатируемый.
Чердак: при желании заказчика, эксплуатируемый.
2 санузла
от 3 027 тыс. руб.
Арвин- 79,3 кв.м.
Количество спален: 2
Подвал: нет
Гараж: нет
Чердак: при желании заказчика, эксплуатируемый
Терраса: нет
Первый этаж: тамбур, две спальни, кухня, гостиная, санузел, котельная.
Подвал: нет
Гараж: нет
Чердак: при желании заказчика, эксплуатируемый
Терраса: нет
Первый этаж: тамбур, две спальни, кухня, гостиная, санузел, котельная.
2 спальни
от 1 982 тыс. руб.
Кэмерон- 87,3 кв.м.
Количество спален: 1
Подвал: нет
Гараж: нет
Чердак: нет
Терраса: да
Первый этаж: тамбур, гардероб, спальня, кухня-гостиная, санузел, котельная.
Подвал: нет
Гараж: нет
Чердак: нет
Терраса: да
Первый этаж: тамбур, гардероб, спальня, кухня-гостиная, санузел, котельная.
Терраса
от 2 182 тыс. руб.
Сириус - 209,3кв.м.
Количество спален: 4
Подвал: нет
Гараж: нет
Терраса: да
Первый этаж: тамбур, холл, котельная, санузел, гардероб, спальня, кухня — столовая, гостиная.
Второй этаж: три спальни, санузел, гардеробы.
Подвал: нет
Гараж: нет
Терраса: да
Первый этаж: тамбур, холл, котельная, санузел, гардероб, спальня, кухня — столовая, гостиная.
Второй этаж: три спальни, санузел, гардеробы.
4 спальни
от 5 232 тыс. руб.
Сандра- 187,9 кв.м.
Количество спален: 3
Подвал: нет
Гараж: да
Чердак: нет
Терраса: да
Первый этаж: тамбур, холл, котельная, санузел, кухня, гостиная, гараж.
Второй этаж: три спальни, санузел, гардероб.
Подвал: нет
Гараж: да
Чердак: нет
Терраса: да
Первый этаж: тамбур, холл, котельная, санузел, кухня, гостиная, гараж.
Второй этаж: три спальни, санузел, гардероб.
3 спальни
от 4 697 тыс. руб.
Если не один проект Вам не подходит - наши проектировщики разработают индивидуальный проект по вашим критериям и пожеланиям. Разработка проекта будет входить в стоимость строительства. Отдельно разработка стоит от 300 руб. за кв.м.
По проекту позвоните по номеру 8 978 626 00 90
По проекту позвоните по номеру 8 978 626 00 90
Ответьте на 8 простых вопросов
и получите:
и получите:
Расчёт стоимости дома по выбранным
Вами критериям
1 из 4 гарантированных
подарков на выбор!
подарков на выбор!
Каталог ТОП40 проектов домов для Севастополя
Мы гарантируем Ваше минимальное
вовлечение в рутину строительства, беря на себя весь комплекс строительных работ
вовлечение в рутину строительства, беря на себя весь комплекс строительных работ
Вы не рискуете своими деньгами, нервами и временем
Мы берем на себя полную материальную ответственность по договору за дом, работы, сроки выполнения каждого этапа работы
Мы берем на себя полную материальную ответственность по договору за дом, работы, сроки выполнения каждого этапа работы
Экспресс проектирование
- Планировка
- Эскиз
- Рабочий план
10 000 ₽
Рабочий проект
- Планирование
- Эскиз
- Рабочий план
- Рабочая документация
от 30 000 ₽
Ленточный
- Проектирование.
- Разметка.
- Земельные работы.
- Монтаж опалубки.
- Армирование.
- Закладка гильз коммуникаций
- Заливка.
- Гидроизоляция и
обратная засыпка - Демонтаж опалубки
От 13 000 ₽/м3
Монолитная плита
- Проектирование.
- Разметка.
- Земельные работы.
- Утрамбовка подсыпки
- Монтаж опалубки.
- Армирование.
- Закладка гильз коммуникаций
- Заливка.
- Гидроизоляция и
обратная засыпка - Демонтаж опалубки
От 15 000 ₽/м3
УШП
- Подготовка основания
- Формирование отводных дренажных каналов;
- Монтаж заземления;
- Монтаж дренажной системы;
- Подготовка основания под плиту (песчаная подушка);
- Установка опалубки;
- Монтаж труб, входа воды;
- Укладка утеплителя
- Монтаж труб теплого пола;
- Армирование основания
- Заливка бетона;
- Затирка бетона.
От 17 000 ₽/м3
Из блоков ФБС
- Разметка
- Земляные работы
- Устройство подушки
- Обустройство подошвы
- Укладка блоков
- Армопояс
- Гидроизоляция
От 11 000 ₽/м3
Двускатная и более
- Монтаж мауэрлата
- Крепление стропильных ног
- Монтаж стропил
- Теплоизоляция кровли
- Гидроизоляция
- Установка обрешетки
- Укладка покрытия
- Монтаж водосточной системы
От 600 ₽/м2
Плоская
- Несущее основание;
- Пароизоляция;
- Многослойный утеплитель;
- Гидроизоляция
- Монтаж водосточной системы
От 600 ₽/м2
Эксплуатируемая
- Несущее основание;
- Пароизоляция;
- Многослойный утеплитель
- Стяжка из цементно-песчаной смеси
- Гидроизоляция
- Монтаж террасной доски
- Монтаж водосточной системы
- Монтаж ограждения
От 1 200 руб/м2
Ничто так не радует строителя,
как отзывы о его работе
как отзывы о его работе
Пара коротких, но очень приятных отзыва о последних наших работах
Скачайте каталог ТОП40
проектов домов для Севастополя
Заполните форму, чтобы получить доступ к каталогу проектов с ценой
Лучше один раз увидеть
Наша команда стремится к полной прозрачности в работе, поэтому
мы с удовольствием показываем каждый процесс строительства,
без прикрас. Познакомим с людьми, которым уже строили и строим дома.
мы с удовольствием показываем каждый процесс строительства,
без прикрас. Познакомим с людьми, которым уже строили и строим дома.
Запишитесь на экскурсию
по строящимся домам,
чтобы убедиться в нашем
профессионализме вживую!
по строящимся домам,
чтобы убедиться в нашем
профессионализме вживую!
Наши контакты
Севастополь ул. Отрадная 15/1
Пн-Пт с 9:00 до 21:00.
Остались вопросы? Мы перезвоним и ответим на них
Или пишите нам в мессенджер